マンション 舞子五色塚ハイツ
所在地
神戸市垂水区五色山3丁目
2,490万円
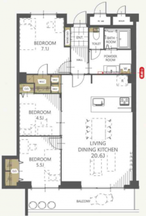
83.41m²
3LDK
南西向きで陽当たり良好です。
明石海峡大橋が望めます♪
JR「垂水」駅まで徒歩約12分!通勤も買い物も便利です。
五色山東公園まで徒歩約5分(約300m)
神戸霞ヶ丘郵便局まで徒歩約9分(約600m)
ローソン霞ヶ丘4丁目店まで徒歩約10分(約650m)
物件概要
- 交通
-
山陽線 垂水駅 まで 徒歩12分
- 専有面積
- 壁芯 83.41㎡
- バルコニー面積
- 10.30㎡
- バルコニー方向
- 南西
- 所在階/階数
- 4階/6階
- 築年数
-
1974年
(昭和49)
12月
築51年 - 建ぺい率
- 容積率
- 土地権利
- 所有権
- 構造および階数
- RC(鉄筋コンクリート) 造 地上6階建
- 総戸数
- 51戸
- 小学校区
- 霞ヶ丘 ( 910m )
- 中学校区
- 歌敷山 ( 1190m )
- 地目
- 現況
- 空
- 引渡時期
- 即時
- 駐車場
- 駐車場月額
- 11,000円/月
- 管理形態
- 全部委託
- 管理方式
- 管理人日勤
- 管理会社
- 日本管財住宅管理㈱
- 管理費
- 12,050円
- 修繕積立費
- 16,930円
- 上水道
- 下水道
- ガス
- 都市計画
- 用途地域
- 1種中高
- 設備・条件
- システムキッチン、カウンターキッチン、洗浄便座、ウォークインクローゼット、エレベーター
- 備考
- 取引態様
- 仲介



