マンション 舞子五色塚ハイツ
所在地
神戸市垂水区五色山3丁目
2,580万円
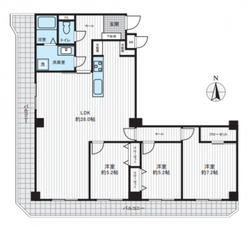
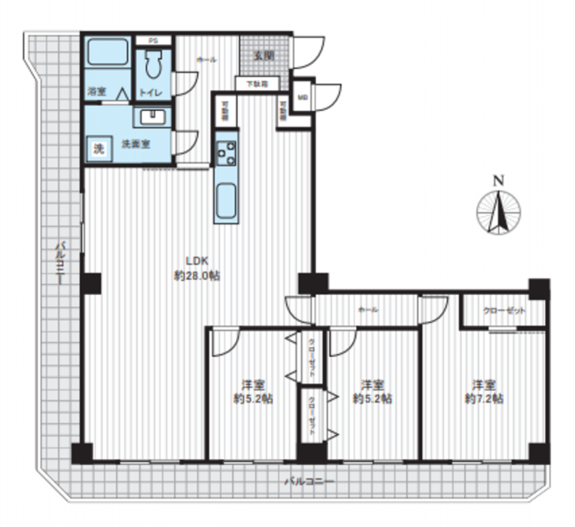
107.68m²
3LDK
2026年リノベーション済物件です♪
バルコニーから明石海峡大橋や淡路島が見渡せます。
LDKは広々約28帖!全室南向き陽当たり良好です。
コープミニ 霞ヶ丘まで徒歩約8分(約550m)
神戸霞ヶ丘郵便局まで徒歩約9分(約600m)
ローソン 神戸霞ケ丘4丁目店まで徒歩約10分(約650m)
物件概要
- 交通
-
山陽線 垂水駅 まで 徒歩12分
山陽電鉄本線 霞ヶ丘駅 まで 徒歩11分
山陽線 舞子駅 まで 徒歩11分
- 専有面積
- 壁芯 107.68㎡
- バルコニー面積
- 39.37㎡
- バルコニー方向
- 南
- 所在階/階数
- 5階/8階
- 築年数
-
1974年
(昭和49)
12月
築51年 - 建ぺい率
- 容積率
- 土地権利
- 所有権
- 構造および階数
- RC(鉄筋コンクリート) 造 地上8階建
- 総戸数
- 小学校区
- 霞ヶ丘 ( 850m )
- 中学校区
- 歌敷山 ( 1200m )
- 地目
- 現況
- 空
- 引渡時期
- 即時
- 駐車場
- 空有
- 駐車場月額
- 10,000円/月
- 管理形態
- 全部委託
- 管理方式
- 管理人日勤
- 管理会社
- 日本管財住宅管理株式会社
- 管理費
- 15,560円
- 修繕積立費
- 21,870円
- 上水道
- 下水道
- ガス
- 都市計画
- 用途地域
- 1種中高
- 設備・条件
- システムキッチン、カウンターキッチン、食器洗浄乾燥機、浴室乾燥機、モニタ付インターホン、洗浄便座
- 備考
- リノベーション済
- 取引態様
- 仲介



