マンション ピュアハイツ高丸第1
所在地
神戸市垂水区千鳥が丘3丁目
650万円
74.73m²
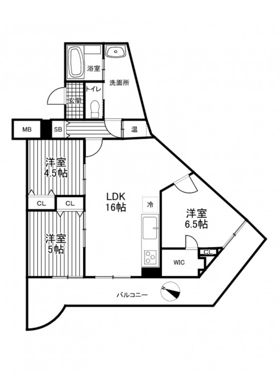
3LDK
★令和5年リノベーション済み★
海まで見渡せて眺望良好♪
徒歩圏内に子育て世帯に便利な環境が充実◎
千鳥が丘公園まで徒歩約2分(約120m)
ファミリーマート 千鳥が丘店まで徒歩約5分(約300m)
サンディ 東垂水店まで徒歩約12分(約800m)
物件概要
- 交通
-
山陽線 垂水駅 バス8分乗車 バス停団地北 まで 徒歩5分
山陽電鉄本線 山陽垂水駅 バス8分乗車 バス停団地北 まで 徒歩5分
- 専有面積
- 74.73㎡
- バルコニー面積
- バルコニー方向
- 南西
- 所在階/階数
- 5階/5階
- 築年数
-
1981年
(昭和56)
4月
築45年 - 建ぺい率
- 容積率
- 土地権利
- 所有権
- 構造および階数
- RC(鉄筋コンクリート) 造 地上5階建
- 総戸数
- 29戸
- 小学校区
- 千鳥が丘 ( 250m )
- 中学校区
- 福田 ( 1200m )
- 地目
- 現況
- 居住中
- 引渡時期
- 相談
- 駐車場
- 空有
- 駐車場月額
- 7,000円/月
- 管理形態
- 全部委託
- 管理方式
- 管理会社
- 汐見建物管理
- 管理費
- 3,480円
- 修繕積立費
- 16,520円
- 上水道
- 下水道
- ガス
- 都市計画
- 用途地域
- 1種低層
- 設備・条件
- システムキッチン、シャンプードレッサー、浴室乾燥機、モニタ付インターホン、ウォークインクローゼット、追い焚き機能、シューズボックス
- 備考
- ・令和5年リフォーム済(詳細不明)
- 取引態様
- 仲介



