新築一戸建て 神戸市垂水区霞ケ丘3丁目A号地
所在地
神戸市垂水区霞ケ丘3丁目A号地
4,080万円
32.21坪
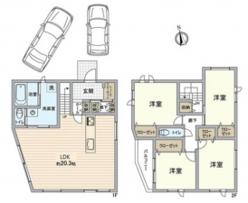
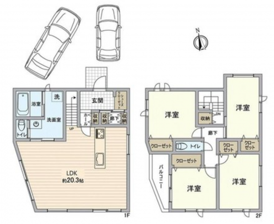
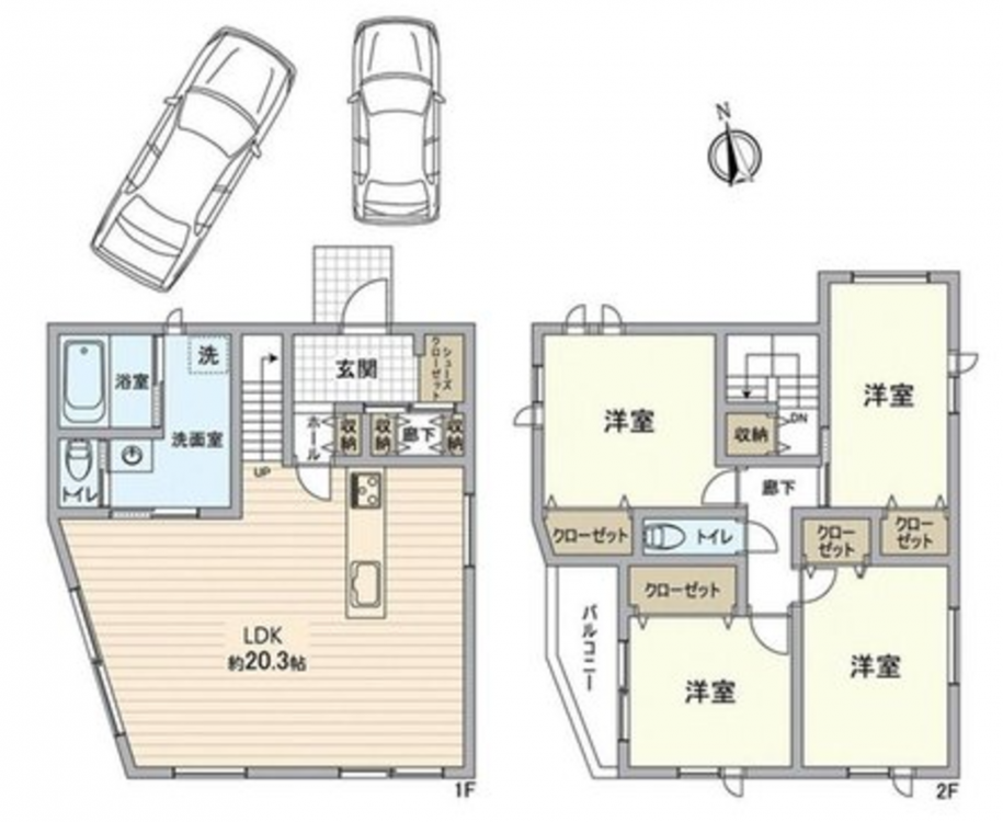
4LDK
落ち着いた住環境の人気エリア♪
2台駐車可能なカースペースあり(車種による)
ゆとりのあるLDK約22.3帖◎
西霞ヶ丘公園まで徒歩約4分(約300m)
ローソン 垂水仲田三丁目店まで徒歩約5分(約350m)
コープミニ 霞ヶ丘まで徒歩約8分(約550m)
物件概要
- 交通
-
山陽線 垂水駅 まで 徒歩13分
山陽電鉄本線 山陽垂水駅 まで 徒歩13分
山陽電鉄本線 霞ヶ丘駅 まで 徒歩17分
- 接道状況
- 北側 私道5m
- 土地面積
- 128.09㎡ (38.74坪)
- 建物面積
- 106.48㎡ (32.21坪)
- 築年数
-
2025年
(令和7)
4月
築1年 - 建ぺい率
- 60%
- 容積率
- 150%
- 土地権利
- 所有権
- 構造および階数
- 木造 地上2階建
- 小学校区
- 霞ヶ丘 ( 800m )
- 中学校区
- 歌敷山 ( 700m )
- 私道負担
- 地目
- 宅地
- 現況
- 空
- 引渡時期
- 即時
- 駐車場
- 有 2台
- 上水道
- 公共
- 下水道
- 公共
- ガス
- 都市ガス
- 都市計画
- 市街化区域
- 用途地域
- 1種低層
- 設備・条件
- システムキッチン、食器洗浄乾燥機、洗浄便座、駐車場2台分、床下収納
- 備考
- 取引態様
- 仲介



