土地 神戸市垂水区歌敷山3丁目
所在地
神戸市垂水区歌敷山3丁目
3,380万円
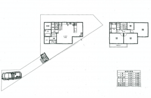
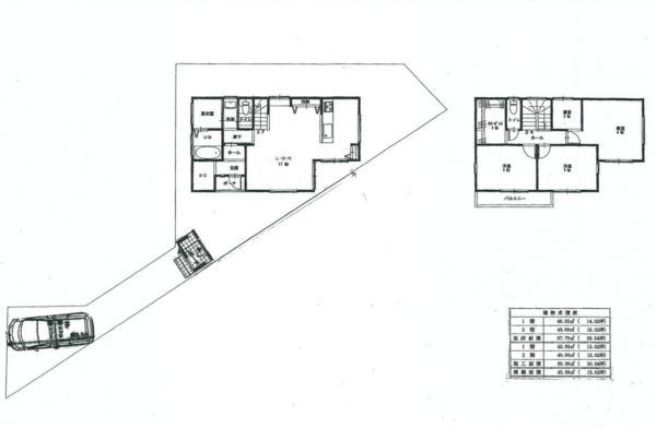
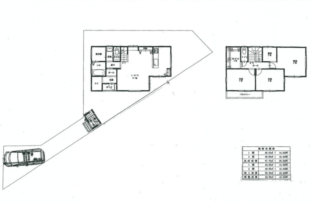
48.48坪
建築条件なし。
垂水で人気の閑静な住宅地にある物件です。
高台にあり、明石海峡大橋が望めます。
物件概要
- 交通
-
山陽線 垂水駅 バス12分乗車 バス停歌敷山中学校前 まで 徒歩2分
- 接道状況
- 北西側 公道6.2m 間口約5.8m
- 土地面積
- 160.28㎡ (48.48坪)
- 建ぺい率
- 60%
- 容積率
- 150%
- 土地権利
- セットバック
- 無し
- 小学校区
- 霞ヶ丘
- 中学校区
- 歌敷山
- 私道負担
- 無
- 建築条件
- ー
- 地目
- 宅地
- 現況
- 更地
- 引渡時期
- 相談
- 上水道
- 公共
- 下水道
- 公共
- ガス
- 都市ガス
- 都市計画
- 市街化区域
- 用途地域
- 1種低層
- 設備・条件
- 備考
- 取引態様
- 仲介



